VĀCU MĀJA

Mūsu būvētajās mājās izmantota vācu tipa monolītā dzelzsbetona grīdas plātne, kas konceptuāli un praktiski atšķiras no Skandināvijā populārās “zviedru plātnes”. Atšķirībā no zviedru risinājuma, kur nesošā daļa faktiski ir putuplasta slānis, mēs izmantojam 200 mm biezu armētu betonu, balstītu uz 50 mm ekstrudētā putuplasta, kas papildus izvirzīts 60 cm ārpus perimetra. Zem siltinājuma ieklāta hidroizolācija, un visa sistēma balstīta uz nesošas, precīzi sagatavotas smilts pamatnes.
Būtiska atšķirība ir arī siltumizolācijas izvietojumā – mēs veicam siltināšanu mājas iekšienē ar 180 mm biezu materiālu, nevis vienīgi apakšā. Šāda slāņu kārtība nodrošina labāku termisko inerci, ļauj izmantot paša betona masu kā siltuma akumulatoru un ievērojami samazina zudumus caur grīdu.
Šī sistēma ir izstrādāta smagai mājai ar gāzbetona sienām, betona pārsegumiem un klinkera dakstiņu jumtu. Tā kalpo ne tikai kā nesošais pamats, bet arī kā stabila, droša platforma ar ilgtspējīgu kalpošanas laiku. Mēs būvējam pamatus tā, lai tie nebūtu jālabo. Ne pēc 5, ne pēc 25 gadiem.
Nekas nav nejaušs.
Viss ir loģisks.
Mūsu izvēlētā sienas konstrukcija (240 mm gāzbetons + 200 mm minerālvate + 25 mm šķirkārta + ķieģeļu apdare) ir ne tikai energoefektīva, bet arī veidota tā, lai nodrošinātu pilnvērtīgu mitruma bilanci visa gada griezumā.
Latvijas klimatiskajos apstākļos efektīva sienas žūšana var notikt aptuveni 120–150 dienas gadā – pārsvarā no pavasara vidus līdz rudenim, kad temperatūra pārsniedz +10°C un relatīvais gaisa mitrums pārsvarā ir zem 70%. Vislabākā žūšana iespējama jūnijā, jūlijā un augustā.
Ļoti būtiski – pat pie nelabvēlīgām vasarām ar paaugstinātu mitrumu un zemāku temperatūru, mūsu konstrukcija ir spējīga pilnībā izžūt, jo sienas uzbūve ir difūzijai atvērta un nav bloķēta ar tvaika barjerām. Turklāt papildus efektu nodrošina rekuperācijas un ventilācijas sistēma, kas veicina pastāvīgu mitruma apmaiņu un izžūšanu no konstrukcijas iekšpuses.
Šāda pieeja atbilst mūsu būvniecības filozofijai: visam mitrumam, kas uzkrājas ziemā, vasarā ir jāspēj pilnībā izžūt. Tikai tad konstrukcija ilgtermiņā saglabā savu funkcionalitāti, veselīgumu un kalpošanas ilgmūžību.
Mūsu mājas jumta konstrukcija ir izstrādāta, lai nodrošinātu maksimālu klusumu, siltuma noturību un kalpošanas ilgumu. Mēs izmantojam īstus klinkera māla dakstiņus, kas ar savu svaru nosedz betona pārsegumu, neveidojot rezonansi, kāda bieži rodas vieglajiem metāla vai bituma jumtiem.
Šāds jumts ir izteikti kluss lietus laikā, nebojājas no UV starojuma un ir dabiski ugunsdrošs. Dakstiņi nav piestiprināti ar naglām vai skrūvēm, bet balstās ar savu svaru un īpašiem stiprinājumiem – tas nozīmē, ka vējš tos nepaceļ un laika gaitā tie nepārplīst.
Papildus konstrukcijas masīvumam, mēs izmantojam 350 mm minerālvates siltumizolāciju, kas ir nosegta ar tvaika plēvi un spārēm, nodrošinot ļoti augstu energoefektivitāti ziemā un aizsardzību no pārkaršanas vasarā. Kombinācijā ar smago jumta segumu, tas rada vienmērīgu, komfortablu iekštelpu klimatu visa gada garumā.
Šis jumts kalpo vairāk nekā 100 gadus un neprasa īpašu apkopi. Tas nav tikai konstrukcijas risinājums – tas ir mājas vainags, kas apvieno estētiku, tehnoloģiju un klusumu, kas nepārtrauc ikdienu.

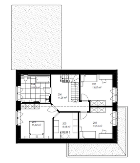
MĀJU PLĀNI
1.stāvs v1

1.stāvs v1

1.stāvs v2

2.stāvs



